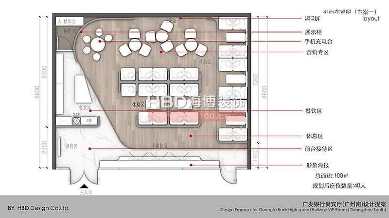
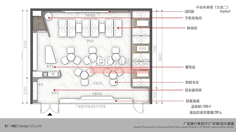
高鐵貴賓廳設計裝修提案 廣發銀行項目
面積 :100平方米 / 地址 :廣州市番禺區鐘村鎮南站 / 點擊 :373
服務、創意、時尚、輕松、休閑、品牌形象、空間體驗,隨著高鐵路網的快速發展,并在明確品牌定位及經營特色的前提下,本案高鐵貴賓廳設計裝修主要通過貴賓廳的經營服務模式,實現廣發銀行品牌形象展露、業務廣告推廣及服務高端客戶,增加客戶粘性,形成品牌形象。空間中用紅色烘托出熱情、友愛的服務環境,天花和地面局部用大面積的白色提亮空間,局部再用木色、黃色、及白色加以中和,使得空間時尚、熱情而通透、舒適。接下來咋們一起進入方案現場吧。
- 上一案例:地產營銷中心辦公樓裝修設計 佳龍集團
- 下一案例:沒有啦














137-1150-4887
在線咨詢
